A “Rome Selfie”
I happened to be in Rome last week (lucky for me) and took a selfie. That’s me, reflecting.

What am I trying to do?
I give a simple answer:
I want my company, Tangerine, which I started in 2016, to co-develop media innovations that I envision, together with the right partner company who wants to build it with me. What do I want in a business partner? A company that builds on discussion among people with mutual respect for the search for the best ideas and approach.
What are the ideas that I envision? Answering that is the purpose of this short post (short for me; others will say it’s too long to read)
what’s the future, models or drawings? or is it something else?
It’s very popular today to say that drawings are going to be obsolete, because they are being replaced by models (or should be replaced by models).
See me standing in the mirror? Here’s what I’m thinking: That idea is incorrect.
It’s a wrong idea, unfounded, undermined by fundamental conceptual error. The idea that drawing is, or is going to be, obsolete, is based on mis-reading, misunderstanding. I used to believe in the idea myself. Starting years ago, back in the 1990s, and up until around 2007, I was a modeler myself and I was really really really into it. Here are a few of the models I worked on: https://www.flickr.com/photos/gringo_en_mexico/sets/72057594101368471/with/518361434/ There are many more projects and models.
On every project for years, I championed total commitment to the idea of modeling. I was so into it that I was determined to make my models “complete” to an extent exceeding any reasonable expectation. The goal was to make the models as near as possible to totally complete, so complete that anywhere and everywhere you would choose to look at them, inside and out, in any area of detail in plan or section, what you would see would be complete enough to meet the professional standard of care for delivery of architectural construction drawings.
It turned out though, and anyone who tries to do this knows, it’s too high of a goal, for a number of reasons mostly related to the practicalities of available time and budget. But those aren’t the most important limitations. It turns out that there are even more basic limitations having to do with limitations in the human ability to understand huge amounts of information. To sum it up, and I’ve written about this in detail on my blog for years, we need the ability to narrow down and focus, in order to wrap our minds around things. More on that later.
What happens though is you resort to a lower goal. You: make the model complete enough that the model can effectively automate every drawing in a set of construction drawings that you will issue, with no extra drafting needed.
Look at my selfie again. I’m still looking in the mirror. Do you see me laughing? Believe me. I’m laughing inside. You know its true, that the truest, the heartiest, the fullest laughter, always comes from the pain of recognition, recognition of painful experience.
Many people aren’t ready to admit their own pain. And that’s why comics make money. They’re ready to admit it, and they can show you. And you’re willing to pay them to do it.
Anyone who has tried to model a project in such a way that even this lower goal is met, really really really, well and truly, needs the services of a comedian.
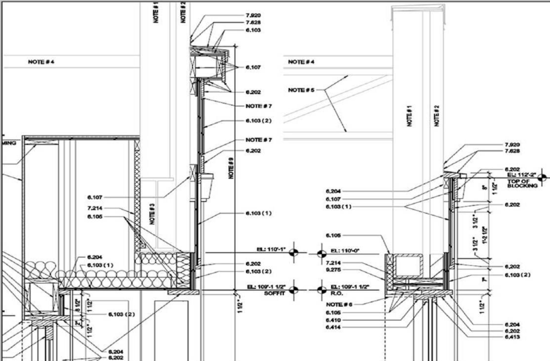
Take a look at just a couple of simple drawings from even a simple, small building design and construction project:

This is a close up from a sheet of 4 drawings:

Stop and think for a second about how much gap there is between the two goals I mentioned above. The higher goal is to model so completely, everywhere, that anywhere that anyone might choose to look at the model, in any area of detail in plan or section (anywhere) – that what they would see there, can be relied upon as complete enough to meet the issuer’s standard of care. Effectively, this is to claim that “…everything that should be shown here (wherever it is that you might be looking in this model), is shown here, and nothing that matters is missing, neither here, nor anywhere else that you might choose to look, elsewhere in the model.”
So that’s the higher goal. It sets out to make that claim true, everywhere, throughout the entirety of a model. And in making that claim, one’s professional liability (and credibility) is at stake in making it true, without exception, everywhere throughout the entire space of a project’s model.
Someone tell a funny joke now. I’m sure you can imagine one.
Who in their right mind would make a claim like that?
No one.
No sane person would claim that. But people do make that kind of claim, or claim that they intend to make it. Such people tend to be technology enthusiasts. Very rarely are they people who are putting their own professional credentials, to practice architecture or engineering, on the line. People who have their professional liability and reputation at stake require a method of narrowing the scope of their communications so that they are more precisely able to control what they review, claim, and certify as “good enough” to meet their professional standard of care.
Most fundamentally, this act of narrowing IS what a set of drawings is: a narrowing down to a finite set of specific locations at which articulate affirmation is made, and for which, responsibility is claimed. I’ve written about this so many times in so many places that I won’t go into further detail, as, it’s hardly necessary anyway. The point is a simple one, and fundamental. What matters is simply to recognize it, and to include that recognition in future innovation. I’ll talk more about that in this document.
However there is an even more primary, more fundamental motivation for this, more basic than this practical need to narrow down to maintain at least some kind of liability control. The primary motivation for narrowing down is even more basic, and it has to do simply with the limits of human understanding, limits of the human mind. We just can’t hold very much in our minds at once. We get overloaded. We lose the ability to make sense of things. To deal with these cognitive limits, we have to narrow down and simplify. Thinking itself, it seems, largely has to do with this act of doing that, narrowing down, focusing. But if you think about it, it’s not really just the narrowing down. It’s actually both narrowing down, and expanding. It’s a ping-ponging between our narrower articulations, and the wider expanse of the whole of an environment. A very good argument can be made that this back and forth, between wide and narrow, ping-ponging between them, really is, either near the root of cognition itself, or actually IS, cognition. In either case, it’s in the ping-ponging back and forth, between wide and narrow, environment and focus, where thinking happens, where understanding grows. And this is true both for project authors and for viewers, both for authors and readers. I’ve written more about this ping-ponging, often, and most recently here: https://tangerinefocus.com/2017/06/20/the-field-of-play-9/
there is business opportunity in this
What’s the future, models or drawings? or is it something else?
100 years ago, or so, actually in the late 1890’s, and taking over 30 years to fully develop, media was transformed by technical innovations that infused recorded sound into silent film. Two media, sound and film, became one medium: “sound film”. This transformed the nature of both sound and film, and created something new that was greater than the sum of the parts, a new medium far more expressive, communicative, and valuable, not just for use in any single or handful of industries, but ultimately spawning whole new industries that were previously unimagined, the television industry being just one of many examples, and later YouTube. We’ve gotten a lot of mileage, to say the least, out of that one media fusion innovation a century ago. It’s been just fundamental.
Today, there is opportunity to do something of that nature again, to fundamentally transform media as we know it. The innovation comes again from the idea of fusion, of two things that exist, to create a new thing that doesn’t yet exist.
What “drawing” is, is fundamental. And what “modeling” is, is fundamental. And their inter-relationship with each other is really very much analogous to the inter-relationship of sound and film. These are two things, drawing and modeling, that are mutually interdependent. To the human mind, one makes little sense without the other. The fusion of one (drawing) into the other (modeling) is going to transform both, and it’s going to amplify the understanding of both, and amplify the capacity of human beings to develop, share, and communicate understanding about complex things.
Like film, this advancement in media is going to bring value across a wide range of industries spanning from industrial applications (powerplants, refineries), to medical imaging, to land planning and transportation, to design and construction of buildings, to design and manufacturing of any manufactured product, to entertainment and gaming, to scientific visualization, to artists, and on and on, including anyone who’s doing anything to imagine, develop, communicate and act in any kind of spatial visual environment. And though I will go into more detail on this later, I mention now that the category of “modeling” is very broad, and today is already “hybridized” in such a way that “modeling” already includes many kinds of media aligned together in the same digital space: vector models, point cloud scans, photography of many kinds aligned in-situ with the rest of the model (of course including photos that are still photos or moving video, and that are cropped images or spherical panoramas, partial or whole), all of which is aligned and composed together whole and including an array of other kinds of data. In aggregate, the whole is a “model”, a highly complex, spatial and visual environment of information, of various kinds and types.
Understanding that model, in specific and useful ways, for whatever purpose, is the nature of the real business problem. Though it’s not just a business problem. It is a business problem, but it’s more than a business problem. Just as infusing sound into moving picture turned out to address a business problem(s), it also addressed more than that. It’s a human issue. It’s at the root of our need to think and express, understand and communicate.
It’s here that “drawing” has its role. It’s not obsolete. It won’t be replaced. It’s fundamental. Drawing is the reason I’m standing here now: recognition that drawing (narrowing) is fundamental to thinking, and to understanding, which grows in the ping-ponging between wide and narrow. If we discard the narrow, then we don’t have thinking, and we don’t have understanding. Understanding won’t grow, if we take away one hand and leave ourselves with the sound of one hand clapping.
What we’re going to do instead is recognize the dynamics of thinking, recognize its basic components, wide and narrow, and innovate based on that recognition. We’re going to reinvent “drawing” based on respect for its function, and careful study of its past and present. And we’re going to reimagine possibilities for the future of media with that function in mind, with the sound of two hands clapping, ping-ponging. We’re going to envision the new fusion, of a reinvented “drawing” with far great utility and power, infused in-situ within any kind of “model”, within any kind of spatial visual hybridized multi-media information environment.
The business opportunity is myriad. I will discuss a few possibilities here without being fixated on any pre-determined business model, because, again, I’m convinced that such ideas are best found in discussion with others who mutually respect the search for the best answers. With that in mind, Tangerine believes there are two major plays here of interest.
Two business plays:
- The future of media: I have envisioned, conceptually on paper, independently at my company, Tangerine, over the last year (2016/17), the future of media itself. As with other innovations in media (like the fusion of sound into film), the result will have unanticipated pay-off both culturally and in business(s). Tangerine will work together with any software company that shares our interest in the future of media and the possibilities of what we’ve conceptualized. Together we can co-develop the future of media. Tangerine is flexible in structuring a working relationship. Contact us to see how easy we are to work with. Email me at robsnyder@tangerinefocus.com and we can get started. We’ll work together with you, or FOR you, in just about any way that you might propose as appropriate/suitable/convenient for your company. How flexible am I? Write me and see.
There are two near term important business plays. The first one (above) is a big one. The second one (below) is bigger. The ideal business partner that Tangerine is seeking, is one that recognizes potential in both. Future media will significantly impact “cognitive computing”.
- Cognitive Computing. I grew up reading THINK magazine, IBM’s magazine (my father worked at IBM for 42 years), throughout the 70s and 80s. A very well written magazine with a title that resonated. Thinking itself, “what is thinking?” has absorbed my thoughts for decades. It spurred my interest in reading, writing, philosophy, science and technology, for as long as I can remember. It’s the basis of innovations that occurred to me later, after being educated in Architecture and working for years on building designs, thinking and communicating through models and drawing. I was able to take my ideas to a CAD software company (Bentley Systems, http://www.bentley.com ) and see them realized. I went there and we developed my ideas, commercialized them in 2012, and patented them. But that’s just preparatory background for what comes next. Those were just baby steps. My new innovations, which are not yet patented, and which I have not shared publicly, are far more matured, far more powerful, with far greater potential, and are completely untethered from any of the claims in the prior patents. My new work makes the 2015 and 2016 patent grants completely obsolete and irrelevant. This new work I want to share with any company developing what’s possible in the field of cognitive computing. What does media innovation have to do with Cognitive Computing? Well, everything, in my opinion. I explain briefly as follows.
“A brain in a box, (as Dharmendra Modha has said https://youtu.be/2er6jWUGDuI ) is of no use in its box.”
Dharmendra Modha is the most inspired thinker in the computing industry that I am aware of.
A mind, becomes what it is, through engagement with an environment of information, within which it is immersed (however it is that a mind undertakes such engagement).
So, or But…
What is thinking?
You might answer: “I have no idea.”
This is most certainly the correct answer. As Noam Chomsky says in his talk “The machine, the ghost, and the limits of understanding“, what the mind is, how it works, is at present (and may always be) beyond the limits of our understanding.
At 26:52 in his talk https://youtu.be/D5in5EdjhD0 , Chomsky says:
“The theory of evolution of course places humans firmly within the natural world. It regards humans as biological organisms, very much like others, and for every such organism, its capacities have scope and limits. The two go together. That includes the cognitive domain…
What we can understand about the mind, or about anything else, has both scope and limits. And though there are limits, still we can continue to make useful observations and hypotheses, about how thinking works.
Two simple ideas/observations about thinking
I’ve made a couple of very simple observations myself.
- The first idea is that media is a place where thinking happens, where ideas develop and are clarified, where understanding grows, both for authors and for readers/viewers. For some kinds of thinking, human beings develop various kinds of media, the purpose of which, it seems, is to facilitate thinking. I’m referring to media types like written text, spreadsheets, drawings, spatial modeled environments, photos, painting… It’s in these media that our thoughts develop and our understanding grows. It’s important to note that certain kinds of thinking are really not possible without these media. Or, rather, the development of thought, without access to these media, is cut short. In media, thoughts are unfolded and developed. I give some examples of this in my brief 9-part short article: https://tangerinefocusdotcom.wordpress.com/2017/06/20/the-field-of-play-9/ [what are these things (drawings and models) fundamentally?]
- The second idea is that thinking seems almost always, if not always, to involve a kind of bouncing back and forth between wholes and parts. Thinking is a ping-ponging — between the “pings” of deliberate acts of articulated narrowing focus, and the “pong” of the whole of an environment. Or more generally, a back and forth between concepts (which are broad) and exemplar information (which is narrower) supporting the concept.
So most importantly, where media becomes the place for the development of human thought, for the growth of understanding and its communication among human minds, so it is that such media, rich with potential cross-data-type correlative events, ripe for a cognitive system to detect and evaluate, becomes the place for the development of machine cognitive systems and the growth of their understanding. New media, developed from the innovations that Tangerine envisions, will be fertile ground for the application of cognitive systems, and their development.
Let me put it another way. A brain in a box cannot think. A brain in a data environment can get to work. But a brain in a fertile field may gain traction not otherwise possible.
Cognitive Systems, immersed within and parsing the new media environments that we envision and facilitate, may gain new traction building connectivity maps through diverse kinds of data, in a medium that better reveals semantic continuity, bridging gaps across diverse, traditionally disconnected data types, through detection and evaluation of potential correlations that otherwise are difficult or impossible to detect. Therefore, Tangerine believes that this new set of media innovations will contribute to computer vision, with application in industrial, entertainment, and healthcare applications, and may contribute to general artificial intelligence. Tangerine’s media innovations will be applicable in all kinds of spatial (“3D”) digital media, and in the various kinds of hybridized visual data environments, with applicability across all display types including desktop and mobile standard display, projection, and VR and AR systems with or without eyeware.
In one sentence, Tangerine believes that these new spatial visual media environments — that contain within themselves the deliberate human acts of articulate sense-making narrowing focus that fosters human understanding — are going to result in a new kind of data environment in common use, that is far richer in cross-data type correlation, and therefore is more fertile ground for intelligent cognitive systems (human and machine) for seeking and finding meaningful understanding of very complex spatial and visual (and other kinds of) data.
OK. a second sentence: in such an environment, a cognitive system like IBM Watson, could engage in productive conversation (with humans), responding to open-ended questions about complex environments, complex questions that are neither easily formulated, nor easily answered.
Tangerine’s media innovations will prove uniquely useful everywhere that conventional drawing and modeling today are useful. We’re going to bring new beauty and power to media itself, and in doing so, we going to improve thinking, and make understanding grow, fuller, faster, better. And we’re going to accomplish this both for human thinking, and for cognitive systems.
Specifics
There are two sets of innovation that I originated.
- The first set of innovations I conceptualized in 2007 when I was employed at my own company, an Architecture firm doing building design. I offered my ideas to a CAD software company, Bentley Systems, who then employed me from 2008 through 2015. At Bentley, we developed my idea, commercialized it, and patented it. The patents were granted in 2015 and 2016. My invention takes every drawing in a set of technical or construction drawings (or sketch drawings) and automatically displays them in their correct positions within 3D models, in-situ, to increase the intelligibility of both the drawings and the models. The automatic fusion of all drawings in-situ within the models, became a part of Bentley’s MicroStation (and other) products, in May 2012. You can see video demonstrations of the commercialized invention on YouTube. Some examples are on Tangerine’s website here: https://tangerinefocus.com/media-innovations/ 18 months later, in October 2013, the same functionality was released by Graphisoft, another modeling software company, who introduced the function in their Android and iOS apps (“BIMX-Docs”) for building design and construction review, automatically infusing drawings on demand into models, for improved intelligibility.
Later, the patents were granted. Here they are:
INTEGRATED ASSEMBLAGE OF 3D BUILDING MODELS AND 2D CONSTRUCTION DRAWINGS
Patent date
Issued Nov 3, 2015
Patent issuer and number
us 9177085
See patent http://1.usa.gov/1Hx33bZ
Multi-dimensional artifact assemblage for infrastructure and other assets with interface node mediators
Patent date
Issued Jul 5, 2016
Patent issuer and number
us 9384308
See patent http://bit.ly/2ifKkpB
Hypermodel-Based Panorama Augmentation
Patent date
Issued Oct 4, 2016
Patent issuer and number
us 9460561
Patent description: Integrated Assemblage of 2D Drawings and Panoramic Images
See patent http://bit.ly/2iFxGRF
- The prior work, above, are just baby steps. Since leaving Bentley in 2015, I independently conceptualized new innovations that are much more interesting and effective, and that make the 3 patents above irrelevant and obsolete.
So what are Tangerine’s NEW innovations?
The old work is based on a literal infusion of exactly what drawing formerly was, taking drawing as-is and infusing it into models.
My new work learns from my past work, and looks at a bigger picture. We reinvent what drawing is first, and then infuse that new expression into models. The reinvention recognizes what drawing is, functionally, and updates the expression in a very modern way that takes full advantage of today’s equipment (software, hardware, media).
Let’s work together and I’ll share my ideas. Let’s build the future of media together.
If we work together, Tangerine will share:
- Tangerine will share our best work, all of it, with your research team. We’ll reinvent drawing, and reinvent its infusion into models.
- These media innovations create fertile ground for cognitive systems, a fertile field where cognition can grow. I will help you conceptualize testing this.
- We will create the future of media itself.
- We will conceptualize where such media can be applied in support of human thinking and understanding.
- We will discuss possible conceptual paths that may lead to cognitive systems recognizing a diverse array of cross-data type correlative events that otherwise, without these media innovations, may be very difficult or impossible to detect. Revealing these correlations may provide greater cognitive traction to cognitive systems. This is true for human cognition, certainly, and may also be true for machine systems. Introduced to this new media, cognitive computing may gain new traction building connectivity maps through diverse kinds of data, in a medium that better reveals semantic continuity, bridging gaps across diverse, traditionally disconnected, data types. Data correlations that otherwise are difficult or impossible to detect, are more likely to be revealed, which may bring a greater coherence spanning a wider range of data/media types, providing fertile ground for a range of cognitive methods (including computer vision applications).
- We will specify how to develop a working prototype of these media innovations and help manage its development to completion.
- We will help you plan some of the possible testing paths for cognitive systems introduced to this new media.
- Use of the media prototype will your company’s, yours.
- We will help you write patent applications for the new media innovations.
- We will discuss business strategies with you, regarding this new media. Would you prefer to keep it in-house within your company only, develop it as proprietary? Or would you like to see it ubiquitous in the world, license it to others?
- We will help you conceptualize and envision commercial applications for cognitive systems immersed in these new media, serving a range of industries, all industries dealing with spatial visual data environments.
- We believe our work will contribute to computer vision, with application in industrial, entertainment, and healthcare applications, and may contribute to general artificial intelligence.
- Tangerine’s media innovations will be applicable in all kinds of spatial (“3D”) digital media and the various kinds of hybrid visual data environments, with applicability across all common display types including desktop and mobile standard display, projection, and VR and AR systems with or without eyeware.
Will this “make the world a better place?”
We’re going to create the future of media itself, a transformative innovation on par with the fusion of sound into film 100 years ago.
Tangerine’s new innovations will define the future of media, by developing the most powerful expression of “drawing” anyone has yet imagined, based on the recognition of the essential function of drawing — the deliberate act of articulate narrowing focus, within the wider expanse of any spatial visual environment (imaginary or digital) — and we’re going to infuse this new form of “drawing” into any of today’s most compelling modeled environments (spatial visual hybridized multi-media environments).
The fusion will create a new medium, a more fertile ground for the cultivation and unfolding of thought, expression, and the growth of understanding, both for humans, and for machine cognitive systems, a richer field of play where thought develops and understanding grows.

